About Us

Berco Ltd was founded in March 2019 in London as a construction and consultant company. Berco Ltd has aimed to be focused on the refurbishment works for residential and commercial buildings from design to commissioning. Berco Ltd works with professional teams of the best craftsmen for all kinds of refurbishment works you need in houses and workplaces.


Civil Engineer Ata Ozberk the founder of the Berco Ltd has got extensive experience in Turkey as a contractor and an executive engineer for over 20 years.


Between 2016-2019 he had worked for DemirOren Co. the one of the biggest companies of Turkey as a construction manager.


With theese experinces, Berco Ltd aims to have effective roles in maintenance, design, refurbishment and construction sectors in London.

Services

CONSTRUCTION

REFURBISHMENT
- From Design and plan to turnkey apply
- Extensions and Lofts
- WC and kitchens

MAINTENANCE WORKS
- Walling, Plastering and Painting
- Flooring (Tiles, carpets,woods)
- Electrical and Plumbing

NEW BUILDING and PROJECTS
- All construction works
- Fine works
- Static Strengthening

DESIGN & DRAWINGS

- Existing and Proposal Projects
- Engineering Survey and Design Projects
- Architectural Survey and Design Projects
- Kitchen and Bathrooms Designs
- Interior Design Project
- 3D, Vray and Photoshop Vısual Drawings

PROJECT MANAGEMENTS

- Design and Construction Processes
- Planing and Scheduling
- Cost and Purcahesing Management
*especially for contractors, subcontractors and who wants to build their own places
- Controlling and Checking

Recent Works

REFURBISHMENT IN RICHMOND

London

ROOF DESIGN IN BRIXTON

London

Previous Constructions

DOGA COLLEGE ATASEHIR

Istanbul

ZORLU CENTER

Istanbul

EGE STRUCTURE AND ENGINEERING LTD COMPANY

Istanbul

TRENDIST ATASEHIR

Istanbul

SKY RESIDENCE BAGDAT ST. ISTANBUL

Istanbul

RAPSODI HOUSES ISTANBUL

Istanbul

PARK MARIN HOUSES

Bodrum

OSMAN TURAN HOUSE

Istanbul

ILHAN TURAN HOUSE

Istanbul

ENSA ALUMINIUM TRADE COMPANY HEADQUARTERS BUILDING

Istanbul

EMINE SABIT BUYUKBAYRAK PRİMARY & HIGH SCHOOL

Istanbul

ELITKENT

Istanbul

Previous Drawings

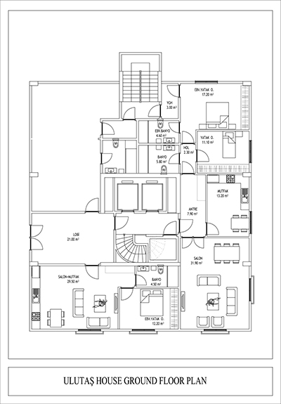
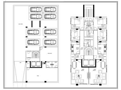
ULUTAS BUILDING

GOZTEPE AKSUT BUILDING

GUNES BUILDING

RANA & TURKMEN HOUSE

DOGU BATI BUILDING

ASLAN STREET

Contact Us

29 Kew Bridge Court W4 3AE
+44 7787 726999
ata@ozberk.co.uk